Wolsztyn
Ekologiczne oszczędne mieszkania
SIM KZN Wielkopolska w Wolsztynie
W Wolsztynie powstaje budynek mieszkalny którego inwestorem jest Społeczna Inicjatywa Mieszkaniowa „KZN – Wielkopolska” Sp. z o.o.. Mieszkania na wynajem, budowane w systemie Społecznej Inicjatywy Mieszkaniowej (SIM), to oferta dla rodzin o umiarkowanych dochodach, w szczególności dla tych, które, z uwagi na przekroczenie progu dochodowego, nie mogą skorzystać z najmu lokalu z zasobu mieszkaniowego gminy, a jednocześnie nie mają zdolności kredytowej, pozwalającej na zakup mieszkania na rynku pierwotnym lub wtórnym przy pomocy kredytu hipotecznego
Konstrukcja budynku wykonana zostanie z prefabrykatów z keramzytobetonu, który jako materiał budowlany spełnia niemal wszystkie oczekiwania, jakie stawia przed nami dom energooszczędny i ekologiczny. W budynku zastosowane zostanie ponad standardowe rozwiązanie indywidualnej instalacji centralnego ogrzewania z wentylacją mechaniczną, z odzyskiem ciepła, dla każdego lokalu, z wykorzystaniem pomp powietrznych ciepła duńskiego producenta – firmy NILAN.
Grand Apartaments jest generalnym wykonawcą inwestycji SIM KZN Wielkopolska w Wolsztynie.
SIM KZN Wielkopolska w Wolsztynie to
Mieszkania
o powierzchni od 38 do 60 m2
Kameralna
inwestycja wśród zieleni
Ekologiczne mieszkania
z balkonami lub ogródkami
Wykończone mieszkania
pod klucz
Lokalizacja
SIM Wolsztyn
Wolsztyn ul. Słoneczna 4G
Wizualizacje
Wybierz mieszkanie
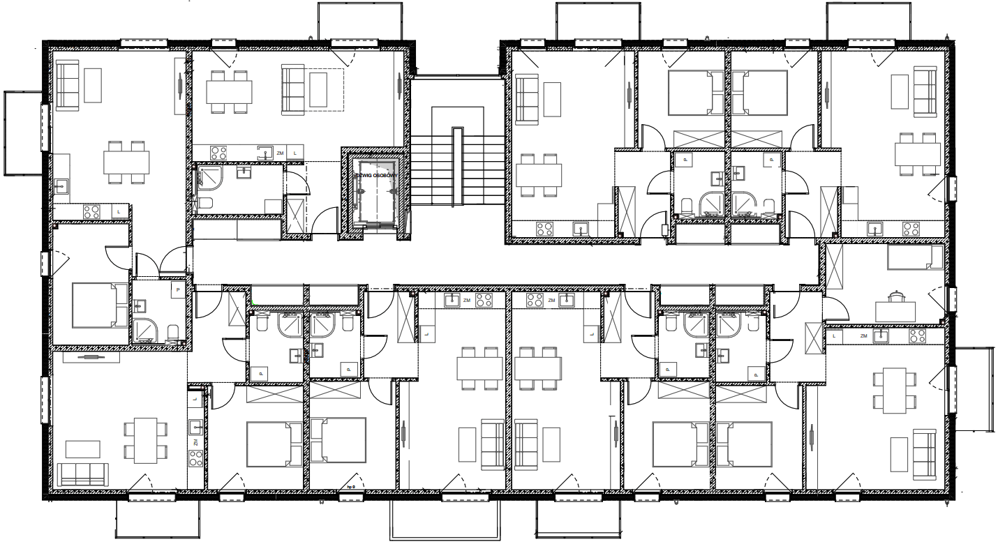
- Parter
- Piętro 1
- Piętro 2
- Piętro 3
M 0.01
Piętro: parter | Liczba pokoi: 2
0.01.01 Korytarz: 6,29 m2
0.01.02 Łazienka: 4,53 m2
0.01.03 Sypialnia: 12,43 m2
0.01.04 Salon, aneks kuch.: 25,38 m2
Łączna powierzchnia: 48,62 m2
Status: wolne
M 0.02
Piętro: parter | Liczba pokoi: 2
0.02.01 Korytarz: 4,91 m2
0.02.02 Łazienka: 4,27 m2
0.02.03 Sypialnia: 11,50 m2
0.02.04 Salon, aneks kuch.: 27,02 m2
Łączna powierzchnia: 47,70 m2
Status: wolne
M 0.03
Piętro: parter | Liczba pokoi: 1
0.03.01 Korytarz: 5,12 m2
0.03.02 Łazienka: 5,77 m2
0.03.03 Salon, aneks kuch.: 27,34 m2
Łączna powierzchnia: 38,23 m2
Status: wolne
M 0.04
Piętro: parter | Liczba pokoi: 2
0.04.01 Korytarz: 5,76 m2
0.04.02 Salon, aneks kuch.: 26,45 m2
0.04.03 Sypialnia: 10,55 m2
0.04.04 Łazienka: 4,17 m2
Łączna powierzchnia: 46,93 m2
Status: wolne
M 0.05
Piętro: parter | Liczba pokoi: 2
0.05.01 Korytarz: 5,76 m2
0.05.02 Łazienka: 4,17 m2
0.05.03 Sypialnia: 10,55 m2
0.05.04 Salon, aneks kuch.: 26,61 m2
Łączna powierzchnia: 47,09 m2
Status: wolne
M 0.06
Piętro: parter | Liczba pokoi: 3
0.06.01 Korytarz: 6,07 m2
0.06.02 Łazienka: 4,44 m2
0.06.03 Sypialnia 1: 11,35 m2
0.06.04 Salon, aneks kuch.: 26,70 m2
0.06.03 Sypialnia 2: 11,95 m2
Łączna powierzchnia: 60,51 m2
Status: wolne
M 0.07
Piętro: parter | Liczba pokoi: 2
0.07.01 Korytarz: 5,61 m2
0.07.02 Łazienka: 4,17 m2
0.07.03 Sypialnia: 11,58 m2
0.07.04 Salon, aneks kuch.: 24,68 m2
Łączna powierzchnia: 46,04 m2
Status: wolne
M 1.01
Piętro: 1 | Liczba pokoi: 2
1.01.01 Korytarz: 5,46 m2
1.01.02 Łazienka: 4,17 m2
1.01.03 Sypialnia: 11,70 m2
1.01.04 Salon, aneks kuch.: 24,21 m2
Łączna powierzchnia: 45,54 m2
Status: wolne
M 1.02
Piętro: 1 | Liczba pokoi: 2
1.02.01 Korytarz: 6,29 m2
1.02.02 Łazienka: 4,73 m2
1.02.03 Sypialnia: 12,42 m2
1.02.04 Salon, aneks kuch.: 25,38 m2
Łączna powierzchnia: 48,82 m2
Status: wolne
M 1.03
Piętro: 1 | Liczba pokoi: 2
1.03.01 Korytarz: 4,91 m2
1.03.02 Łazienka: 4,27 m2
1.03.03 Sypialnia: 11,50 m2
1.03.04 Salon, aneks kuch.: 27,02 m2
Łączna powierzchnia: 47,70 m2
Status: wolne
M 1.04
Piętro: 1 | Liczba pokoi: 1
1.04.01 Korytarz: 4,83 m2
1.04.02 Łazienka: 5,32 m2
1.04.04 Salon, aneks kuch.: 28,13 m2
Łączna powierzchnia: 38,28 m2
Status: wolne
M 1.05
Piętro: 1 | Liczba pokoi: 2
1.05.01 Korytarz: 5,76 m2
1.05.02 Salon, aneks kuch.: 26,45 m2
1.05.03 Sypialnia: 10,55 m2
1.05.04 Łazienka: 4,17 m2
Łączna powierzchnia: 46,93 m2
Status: wolne
M 1.06
Piętro: 1 | Liczba pokoi: 2
1.06.01 Korytarz: 5,76 m2
1.06.02 Łazienka: 4,17 m2
1.06.03 Sypialnia: 10,55 m2
1.06.04 Salon, aneks kuch.: 26,61 m2
Łączna powierzchnia: 47,09 m2
Status: wolne
M 1.07
Piętro: 1 | Liczba pokoi: 3
1.07.01 Korytarz: 6,07 m2
1.07.02 Łazienka: 4,44 m2
1.07.03 Sypialnia 1: 11,35 m2
1.07.04 Salon, aneks kuch.: 26,70 m2
1.07.03 Sypialnia 2: 11,95 m2
Łączna powierzchnia: 60,51 m2
Status: wolne
M 1.08
Piętro: 1 | Liczba pokoi: 2
1.08.01 Korytarz: 5,61 m2
1.08.02 Łazienka: 4,17 m2
1.08.03 Sypialnia: 11,58 m2
1.08.04 Salon, aneks kuch.: 24,68 m2
Łączna powierzchnia: 46,04 m2
Status: wolne
M 2.01
Piętro: 2 | Liczba pokoi: 2
2.01.01 Korytarz: 5,46 m2
2.01.02 Łazienka: 4,17 m2
2.01.03 Sypialnia: 11,70 m2
2.01.04 Salon, aneks kuch.: 24,21 m2
Łączna powierzchnia: 45,54 m2
Status: wolne
M 2.02
Piętro: 2 | Liczba pokoi: 2
2.02.01 Korytarz: 6,29 m2
2.02.02 Łazienka: 4,73 m2
2.02.03 Sypialnia: 12,42 m2
2.02.04 Salon, aneks kuch.: 25,38 m2
Łączna powierzchnia: 48,82 m2
Status: wolne
M 2.03
Piętro: 2 | Liczba pokoi: 2
2.03.01 Korytarz: 4,91 m2
2.03.02 Łazienka: 4,27 m2
2.03.03 Sypialnia: 11,50 m2
2.03.04 Salon, aneks kuch.: 27,02 m2
Łączna powierzchnia: 47,70 m2
Status: wolne
M 2.04
Piętro: 2 | Liczba pokoi: 1
2.04.01 Korytarz: 4,83 m2
2.04.02 Łazienka: 5,32 m2
2.04.04 Salon, aneks kuch.: 28,13 m2
Łączna powierzchnia: 38,28 m2
Status: wolne
M 2.05
Piętro: 2 | Liczba pokoi: 2
2.05.01 Korytarz: 5,76 m2
2.05.02 Salon, aneks kuch.: 26,45 m2
2.05.03 Sypialnia: 10,55 m2
2.05.04 Łazienka: 4,17 m2
Łączna powierzchnia: 46,93 m2
Status: wolne
M 2.06
Piętro: 2 | Liczba pokoi: 2
2.06.01 Korytarz: 5,76 m2
2.06.02 Łazienka: 4,17 m2
2.06.03 Sypialnia: 10,55 m2
2.06.04 Salon, aneks kuch.: 26,61 m2
Łączna powierzchnia: 47,09 m2
Status: wolne
M 2.07
Piętro: 2 | Liczba pokoi: 3
2.07.01 Korytarz: 6,07 m2
2.07.02 Łazienka: 4,44 m2
2.07.03 Sypialnia 1: 11,35 m2
2.07.04 Salon, aneks kuch.: 26,70 m2
2.07.03 Sypialnia 2: 11,95 m2
Łączna powierzchnia: 60,51 m2
Status: wolne
M 2.08
Piętro: 2 | Liczba pokoi: 2
2.08.01 Korytarz: 5,61 m2
2.08.02 Łazienka: 4,17 m2
2.08.03 Sypialnia: 11,58 m2
2.08.04 Salon, aneks kuch.: 24,68 m2
Łączna powierzchnia: 46,04 m2
Status: wolne
M 3.01
Piętro: 3 | Liczba pokoi: 2
3.01.01 Korytarz: 5,46 m2
3.01.02 Łazienka: 4,17 m2
3.01.03 Sypialnia: 11,70 m2
3.01.04 Salon, aneks kuch.: 24,21 m2
Łączna powierzchnia: 45,54 m2
Status: wolne
M 3.02
Piętro: 3 | Liczba pokoi: 2
3.02.01 Korytarz: 6,29 m2
3.02.02 Łazienka: 4,73 m2
3.02.03 Sypialnia: 12,42 m2
3.02.04 Salon, aneks kuch.: 25,38 m2
Łączna powierzchnia: 48,82 m2
Status: wolne
M 3.03
Piętro: 3 | Liczba pokoi: 2
3.03.01 Korytarz: 4,91 m2
3.03.02 Łazienka: 4,27 m2
3.03.03 Sypialnia: 11,50 m2
3.03.04 Salon, aneks kuch.: 27,02 m2
Łączna powierzchnia: 47,70 m2
Status: wolne
M 3.04
Piętro: 3 | Liczba pokoi: 1
3.04.01 Korytarz: 4,83 m2
3.04.02 Łazienka: 5,32 m2
3.04.04 Salon, aneks kuch.: 28,13 m2
Łączna powierzchnia: 38,28 m2
Status: wolne
M 3.05
Piętro: 3 | Liczba pokoi: 2
3.05.01 Korytarz: 5,76 m2
3.05.02 Salon, aneks kuch.: 26,45 m2
3.05.03 Sypialnia: 10,55 m2
3.05.04 Łazienka: 4,17 m2
Łączna powierzchnia: 46,93 m2
Status: wolne
M 3.06
Piętro: 3 | Liczba pokoi: 2
3.06.01 Korytarz: 5,76 m2
3.06.02 Łazienka: 4,17 m2
3.06.03 Sypialnia: 10,55 m2
3.06.04 Salon, aneks kuch.: 26,61 m2
Łączna powierzchnia: 47,09 m2
Status: wolne
M 3.07
Piętro: 3 | Liczba pokoi: 3
3.07.01 Korytarz: 6,07 m2
3.07.02 Łazienka: 4,44 m2
3.07.03 Sypialnia 1: 11,35 m2
3.07.04 Salon, aneks kuch.: 26,70 m2
3.07.03 Sypialnia 2: 11,95 m2
Łączna powierzchnia: 60,51 m2
Status: wolne
M 3.08
Piętro: 3 | Liczba pokoi: 2
3.08.01 Korytarz: 5,61 m2
3.08.02 Łazienka: 4,17 m2
3.08.03 Sypialnia: 11,58 m2
3.08.04 Salon, aneks kuch.: 24,68 m2
Łączna powierzchnia: 46,04 m2
Status: wolne
UWAGA: Grand Apartments jest generalnym wykonawcą i nie jest odpowiedzialny za wynajem lokali. W tym celu prosimy o kontakt bezpośrednio z SIM KZN Wielkopolska









